CÔNG TY CỔ PHẦN NĂNG LƯỢNG THIÊN Ý HÀ NỘI
ĐỊA ĐIỂM: TẦNG 22A TÒA NHÀ LOTTE CENTRE, SỐ 54 LIỄU GIAI, BA ĐÌNH HÀ NỘI
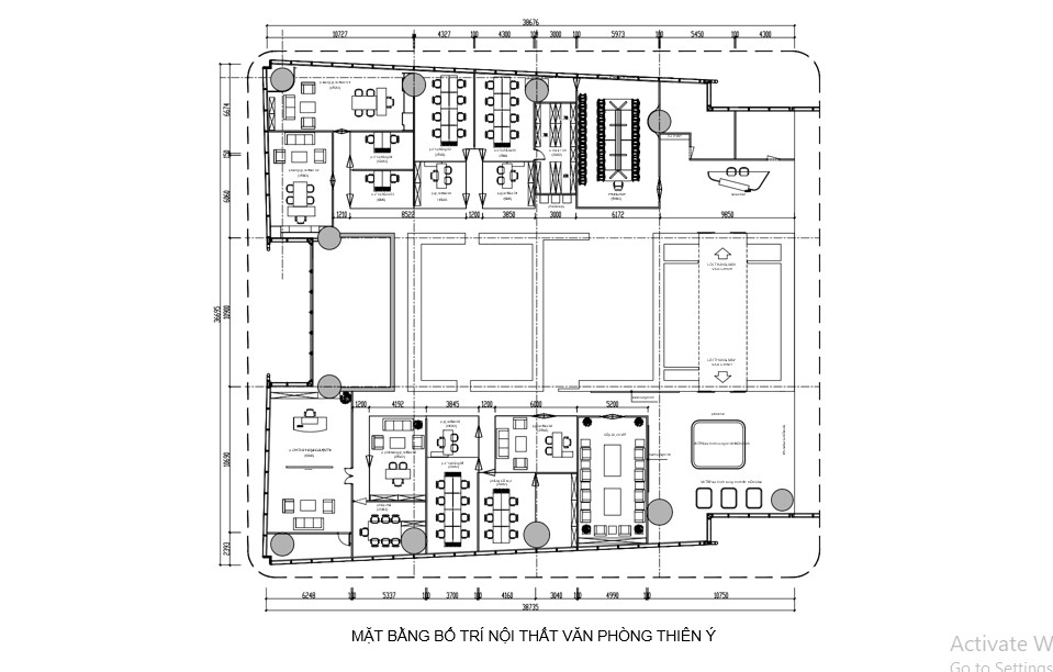
QUY MÔ: 980 M2
THỜI GIAN THỰC HIỆN : 10/2021
































CÔNG TY CỔ PHẦN NĂNG LƯỢNG THIÊN Ý HÀ NỘI
ĐỊA ĐIỂM: TẦNG 22A TÒA NHÀ LOTTE CENTRE, SỐ 54 LIỄU GIAI, BA ĐÌNH HÀ NỘI
QUY MÔ: 980 M2
THỜI GIAN THỰC HIỆN : 10/2021































